資料請求・物件エントリー
来場予約
トップ
デザイン
ロケーション
プラン
コンセプトルーム
居室内
クオリティ
概要
現地案内図
マンションギャラリー
案内図
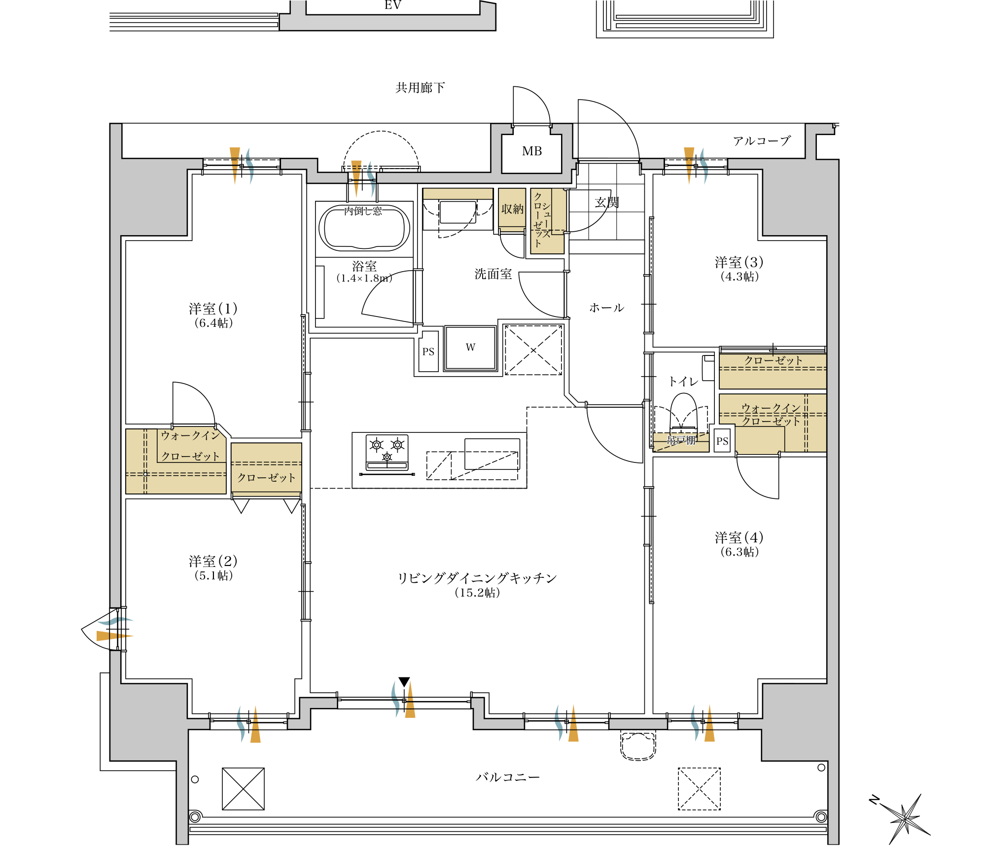
PLAN
A
TYPE
4
LDK+WIC+SC
住戸専有面積
80.94
m²(約24.48坪)
アルコーブ面積
5.67
m²(約1.71坪)
バルコニー面積
14.73
m²(約4.45坪)
合計面積
101.34
m²(約30.65坪)
印刷する
一覧に戻る
※住戸専有面積にはメーターボックスを含みます。
※WIC:ウォークインクローゼット SC:シューズクローゼット
TOP
DESIGN
LOCATION
PLAN
CONCEPT ROOM
SPACE
QUALITY
OUTLINE
MAP
MAP
TEL
資料請求・物件エントリー
来場予約
TOP